Zum Hauptinhalt springen Zur Suche springen Zur Hauptnavigation springen
Telefonische Beratung: 02331 - 62 52 8-0 (Mo-Do: 7:45 - 16:00 Uhr und Fr: 7:45 - 14:30 Uhr)
Ihr Partner für Werkstatt- und Betriebseinrichtungen

Teleskop-Lader Typ KTH 5,0

Produktinformationen "Teleskop-Lader Typ KTH 5,0"

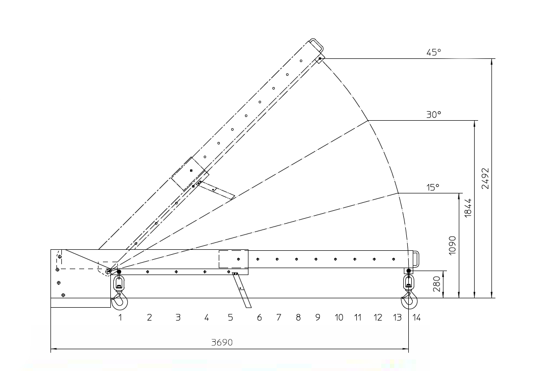
Teleskop-Lader Typ KTH 5,0 höhenverstellbar

- höhenverstellbar, jede Position mit Steckbolzen gesichert
- Stahlkonstruktion
- Innenliegender teleskopierbarer Teil 8-fach ausziehbar,
  jede Position mit Steckbolzen gesichert
- Kettensicherung gegen unbeabsichtigtes Abrutschen
- 2 Wirbellasthaken
- Teleskopierbar bis 3690 mm
- Oberfläche lackiert gelborange RAL 2000, feuerrot RAL 3000,
  lichtblau RAL 5012 oder feuerverzinkt

Tragfähigkeit: 950- 5000 kg
Gesamtmaße: L 2210 x B 550 x H 600 mm
Maße A/B/C: 166/184/84 mm
Gewicht: 250 kg

Informationen zur Produktsicherheit:

  • Nur für technisch versierte und mit dem Produkt vertraute Anwender sowie Handwerker geeignet.
  • Nur für den vorhergesehenen Verwendungszweck geeignet.
  • Unsachgemäße Verwendung kann zu Schäden und Verletzungen führen.

Importeur/Hersteller:

Gedema GmbH
Berchumer Str. 74
58093 Hagen

E-Mail: info@messwelt.com
E-Mail: info@gedema.com

Ausgenommen sind Artikel bei denen explizit der Hersteller genannt wird.